Surażkowo 4
5500 zł
| Powierzchnia użytkowa | 126,89m2 |
| Powierzchnia zabudowy | 116,86m2 |
| Powierzchnia dachu | 218,47m2 |
| Kąt nachylenia dachu | 40° |
| Wysokość w kalenicy | 7,5m |
| Wysokość parteru | 2,92m |
| Wysokość piętra | 3,06m |
| Wysokość ścianki kol. | 0,49m |
| Kubatura | 687m3 |
| Minimalne wymiary działki | 22,70m X 16,95m |
| Pokoje (bez salonu) | 4 |
| Łazienki i toalety | 2 |
| Garaż | Brak garażu |
Technologia
Dach: dachówka, blachodachówka lub blacha na rąbek
Elewacje: szalówka
Strop: drewniany
Ściany wewnętrzne: murowane
Ściany zewnętrzne: dwuwarstwowe, pustak ceramiczny, docieplony wełną mineralną
Dodatkowe informacje
Opis projektu
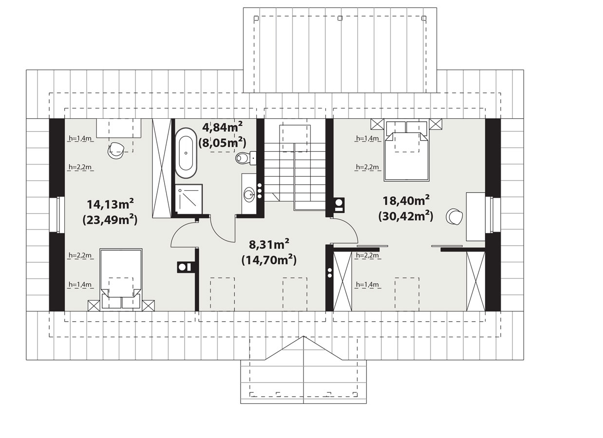
Surażkowo 4 to projekt niedużego domu z użytkowym poddaszem nawiązującego stylem do tradycyjnych podlaskich domów. Posiada na parterze dwie sypialnie, otwartą część dzienną, łazienkę, pomieszczenie techniczne oraz „piwniczkę” pod schodami. Na poddaszu zlokalizowano dodatkowe dwie sypialnie i łazienkę. Większość wewnętrznych ścian parteru i poddasza są to ściany działowe co pozwala na wiele sposobów ich aranżowania. Wejście do domu jest przez zadaszony ganek-werandę a od drugiej strony jest zadaszony taras. Dom standardowo wyposażony jest w pompę ciepła oraz kominek.


