Surażkowo 3- projekt domu

5200 zł

  Pokaż wersję podstawową

Surażkowo 3

5200 zł

  Pokaż wersję podstawową

Powierzchnia użytkowa119,56m2
Powierzchnia zabudowy106,13m2
Powierzchnia dachu 189,5m2
Kąt nachylenia dachu 40°
Wysokość w kalenicy7,5m
Wysokość parteru 2,92m
Wysokość piętra 3,06m
Wysokość ścianki kol. 0,49m
Kubatura582m3
Minimalne wymiary działki 21,35m X 16,95m
Pokoje (bez salonu)4
Łazienki i toalety2
Garaż Brak garażu
Zapytaj o bezpłatną wycenę budowy

Technologia

Dach: dachówka, blachodachówka lub blacha na rąbek
Elewacje: szalówka
Strop: drewniany
Ściany wewnętrzne: murowane
Ściany zewnętrzne: dwuwarstwowe, pustak ceramiczny, docieplony wełną mineralną

Ogrzewanie: Pompa ciepła

Pliki do pobrania

Rysunki szczegółowe

Dodatkowe informacje

Projekt dostępny także we innych wersjach: Surażkowo, Surażkowo 2

Opis projektu

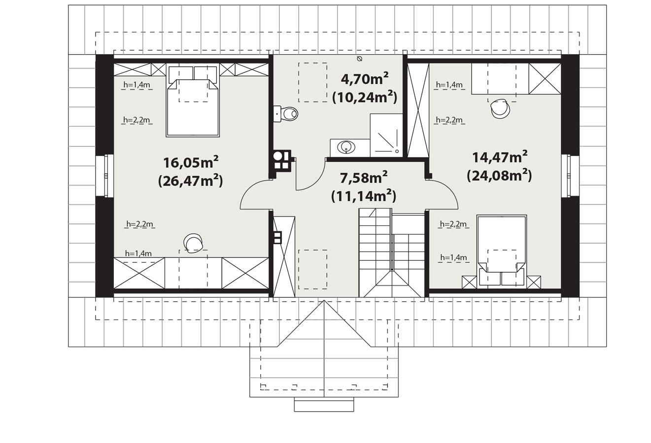
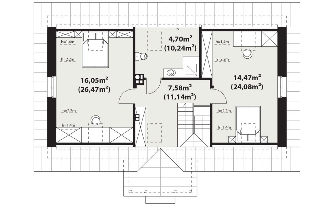
Surażkowo 3 to projekt niedużego domu z użytkowym poddaszem nawiązującego stylem do tradycyjnych podlaskich domów. Posiada na parterze dwie sypialnie, otwartą część dzienną, łazienkę oraz pomieszczenie techniczne. Na poddaszu zlokalizowano dodatkowe dwie sypialnie i łazienkę. Wszystkie wewnętrzne ściany parteru i poddasza są działowe co pozwala na wiele sposobów ich aranżowania. Wejście do domu jest przez zadaszony ganek-werandę. Dom standardowo wyposażony jest w pompę ciepła oraz kominek.